x

Collaboration with architects

We do everything we can to support architects and designers, because we know that: The key to success lies in working with visionary people. And it fills us with pride when our fences help turn visions into reality.

Do you want to impress with smart solutions? You can rely on our many years of experience: our retractable fencing systems are customised and adapt to even the most unusual and demanding conditions. We don't see problems - we see challenges.

Do you have any questions? We support you with our expertise and are happy to send you detailed technical data sheets to make the planning process easier and faster.

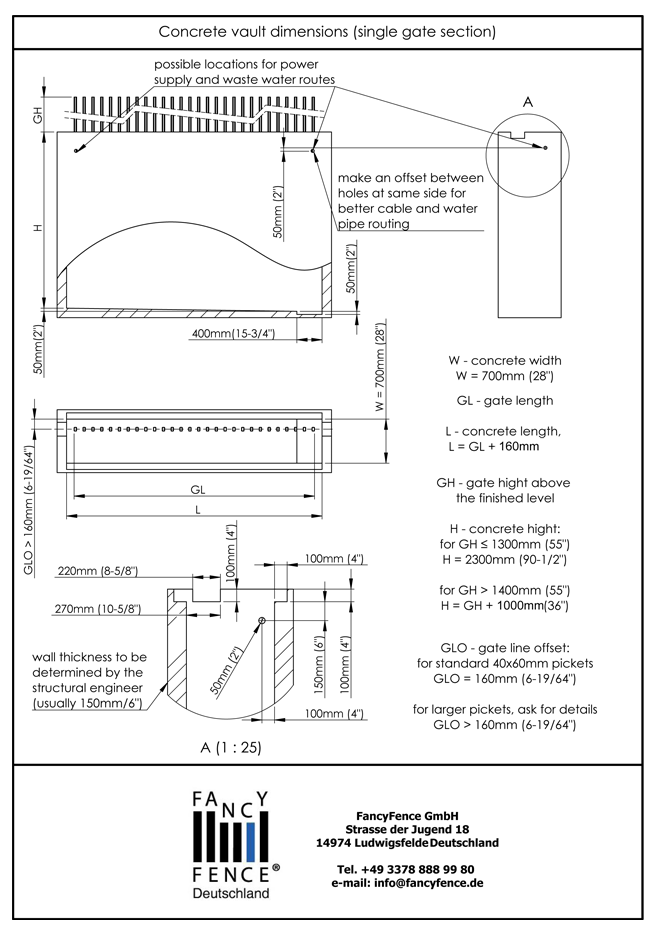
PDF files with concrete shaft dimensions

Concrete vault position underground
Download
Concrete vault position on the property
Download
Concrete vault dimensions
Download
Position of the supply lines
Download
Design help location of the shaft
Download

Certificates

Fancy Fence clad execution
Fancy Fence clad execution
Download
Fancy Fence picket execution
Fancy Fence picket execution
Download
Fancy Fence semi-clad execution
Fancy Fence semi-clad execution
Download
Fancy fence gate high security
Fancy fence gate high security
Download

Realizations

Configure your retractable gate

Enter to CONFIGURATOR

Phone Number

+49 3378 888 99 80

Company

FancyFence GmbH
Registergericht: Amtsgericht Potsdam
Registernummer: HRB 32764 P
VAT ID DE 327382315

Address

FancyFence GmbH
Straße der Jugend 18
D-14974 Ludwigsfelde

52°18'32.3"N 13°15'33.2"E

What can we do for you? * Required fields to receive a quote.

Please provide the parameters if you know them. This will help us to prepare an offer.

How did you discover Fancy Fence?

In most cases, we will respond to your enquiry within three working days.

Fancy Fence